北佐久郡御代田町塩野西畠
一戸建て
塩野の旧集落に佇む古民家 ※商談中
日本庭園、縁側、浅間山…
リノベして、信州暮らしを楽しむ!
更新日:2026.02.21
物件番号:mi02-0039
物件番号:mi02-0039
500万円(税込)



●万一売却済の場合はご容赦ください。 ●ご成約の際には、規定の仲介手数料を申し受けます。 ●図面と現状が異なる場合は現状を優先といたします。 ●坪表示は1㎡〜0.3025坪で換算した約表示です。
| 土地 | 【土地面積】653.98㎡(約197.83
坪) 【地目】宅地 【地勢】平坦 【都市計画】非線引き区域内 【用途地域】無指定地域 【建ぺい率】60% 【容積率】200% 【道路状況】南側幅員約5m町道、東側幅員約2.5m町道に接道 【権利】所有権 |
|---|---|
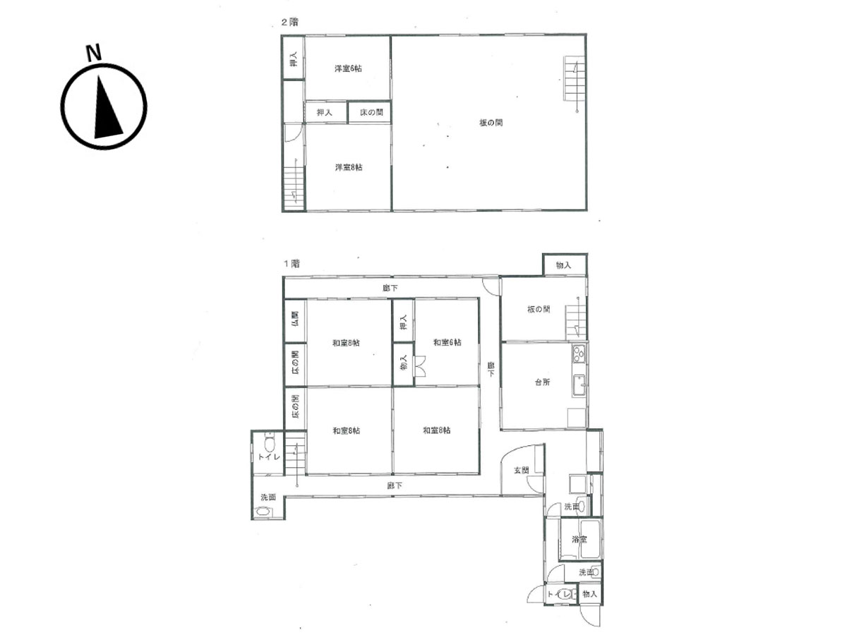
| 建物 | 【建物構造】木造瓦葺2 階建 【建物面積】1階:115.70㎡、2階:92.56㎡ 合計:208.26㎡(62.99坪) 【築年月】不詳 【引渡し】応相談 付属建物の登記あり:1階西側トイレ洗面部分(6.61㎡(1.99坪)) 別途未登記の居宅(10.84㎡)・付属建物(33.05㎡)あり ※契約不適合責任免責、見学要予約 |
| 周辺情報 | しなの鉄道御代田駅まで約2.9km/ スーパーツルヤまで約2.4km/ MMoPまで約2.4km/ パン・トゥルーべまで約1.3km/ だんごカフェかえる亭まで約0.3km/ 真楽寺まで約1.3km/ |
| 設備 | 都市ガス/公営水道/下水道/中部電力 |
| 特記事項 | 長野県景観条例 土砂災害警戒区域(イエローゾーン) 長野県住宅宿泊事業の適正な実施に関する条例により、民泊事業は制限を受けます。 |
| 取引態様 | 媒介 |
御代田の土地・物件はお任せください
〒389-0206 長野県北佐久郡御代田町御代田4106-473
E-MAIL. info@tsubame-estate.com
長野県知事(2)第5648号
E-MAIL. info@tsubame-estate.com
長野県知事(2)第5648号
ホームページ

TEL.0267-41-0095
受付時間
10:00〜17:00(水曜・祝日定休)
内覧希望やご相談などございましたら、
お気軽にお電話ください。
※オンラインでの移住相談、物件案内も承っております。電話番号はお問い合わせ専用ダイヤルです







